
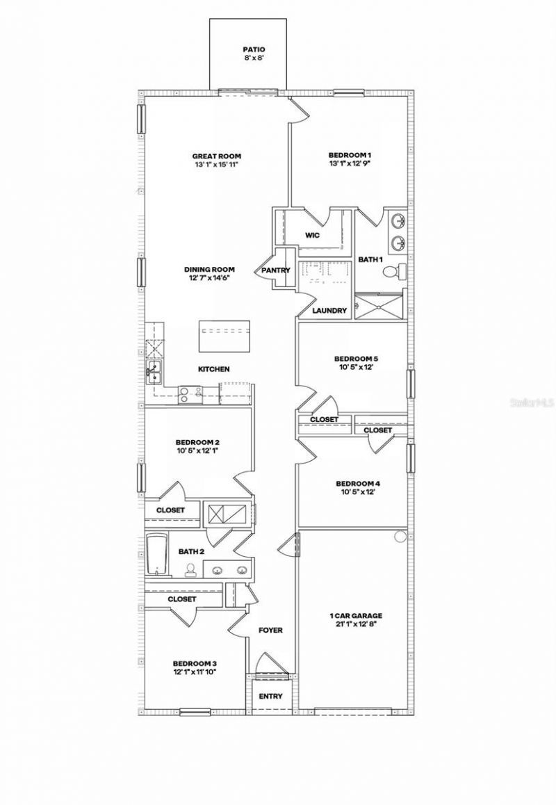
Under Construction. The Aflord floorplan is a thoughtfully designed single-story home featuring 5 bedrooms, 2 full bathrooms, and over 1,700 square feet of open-concept living space. This plan features a bright and airy layout that blends functionality with modern style. At the heart of the home, the kitchen impresses with sleek quartz countertops, a center island, and stainless-steel appliances, creating a stylish and functional space for cooking and entertaining. The adjoining dining and livin...Under Construction. The Aflord floorplan is a thoughtfully designed single-story home featuring 5 bedrooms, 2 full bathrooms, and over 1,700 square feet of open-concept living space. This plan features a bright and airy layout that blends functionality with modern style. At the heart of the home, the kitchen impresses with sleek quartz countertops, a center island, and stainless-steel appliances, creating a stylish and functional space for cooking and entertaining. The adjoining dining and living areas open up to the outdoor patio. The Owner's Suite features a private ensuite bathroom, with a double vanity sink and large walk-in closet. The 4 additional bedrooms share the spacious second bathroom, also with a double vanity sink and quartz countertops. The dedicated laundry room is conveniently situated near the bedrooms and kitchen. The Alford is complete with a state-of-the-art smart home system that keeps you connected to your home at all times. Pictures, photographs, colors, features, and sizes are for illustration purposes only and will vary from the homes as built. Home and community information including pricing, included features, terms, availability and amenities are subject to change and prior sale at any time without notice or obligation. CRC057592.
View MoreCourtesy of
Agency Name: DR HORTON REALTY OF WEST CENTRAL FLORIDA
Agency Contact: 352-558-6840
Agent Name: Anne Peterson Eger
Presented by
Agent Name: Boca East
Agent Phone: 561.501.1001
Agency Title: The Keyes Company
Request Info
Send an email with a link to
4035 Kona Circle, Spring Hill, FL 34608.
Email 4035 Kona Circle, Spring Hill, FL 34608
Thank you for your inquiry! As a thank you, we have a Special Mortgage Offer for You.
We would like to provide you a free, no-obligation, home loan pre-approval review.