
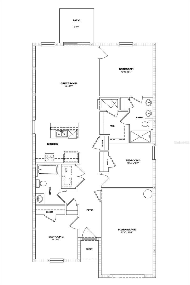
Under Construction. The Greenbriar is a charming and efficient single-story home offering 3 bedrooms, 2 bathrooms, and 1,223 square feet of thoughtfully designed living space with a smart layout and stylish finishes. The heart of the home is the open-concept kitchen, featuring quartz countertops, a functional center island, and stainless-steel appliances.Overlooking the dining and living areas, the kitchen creates a seemless space ideal for both everyday living and entertaining guests. Step outs...Under Construction. The Greenbriar is a charming and efficient single-story home offering 3 bedrooms, 2 bathrooms, and 1,223 square feet of thoughtfully designed living space with a smart layout and stylish finishes. The heart of the home is the open-concept kitchen, featuring quartz countertops, a functional center island, and stainless-steel appliances.Overlooking the dining and living areas, the kitchen creates a seemless space ideal for both everyday living and entertaining guests. Step outside to the outdoor patio, a great spot to unwind or enjoy your morning coffee. The Owner's Suite offers a peaceful retreat with a walk-in closet, and a private ensuite bathroom with a double vanity sink and quartz countertops. The 2 additional bedrooms share the spacious second bathroom, also with quartz countertops. The laundry room is located in the center of the home for convenience. The Greenbriar is complete with a state-of-the-art smart home system that keeps you connected to your home at all times. Pictures, photographs, colors, features, and sizes are for illustration purposes only and will vary from the homes as built. Home and community information including pricing, included features, terms, availability and amenities are subjext to change and prior sale at any time without notice or obligation. CRC057592.
View MoreCourtesy of
Agency Name: DR HORTON REALTY OF WEST CENTRAL FLORIDA
Agency Contact: 352-558-6840
Agent Name: Anne Peterson Eger
Presented by
Agent Name: Boca East
Agent Phone: 561.501.1001
Agency Title: The Keyes Company
Request Info
Send an email with a link to
4016 Kona Circle, Spring Hill, FL 34608.
Email 4016 Kona Circle, Spring Hill, FL 34608
Thank you for your inquiry! As a thank you, we have a Special Mortgage Offer for You.
We would like to provide you a free, no-obligation, home loan pre-approval review.