
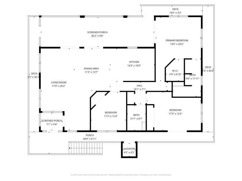
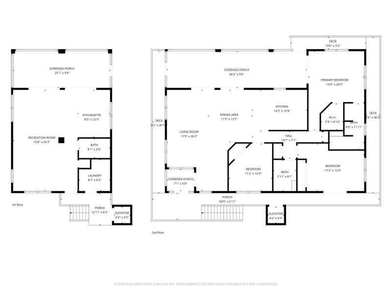
Experience elevated coastal luxury in this stunning CBS waterfront home in highly desirable Eden Pines on Big Pine Key. Offering 4 bedrooms 3 bathrooms and 2,330 sq ft of living space this beautifully designed residence blends comfort, functionality and the ultimate Keys lifestyle.Positioned on open water with direct access to Pine Channel, this property is a boater's dream with a 3' draft, a 15,000 lb boat lift plus a separate boat slip with a 10,000 lb lift, and seamless access to both the Gul...Experience elevated coastal luxury in this stunning CBS waterfront home in highly desirable Eden Pines on Big Pine Key. Offering 4 bedrooms 3 bathrooms and 2,330 sq ft of living space this beautifully designed residence blends comfort, functionality and the ultimate Keys lifestyle.Positioned on open water with direct access to Pine Channel, this property is a boater's dream with a 3' draft, a 15,000 lb boat lift plus a separate boat slip with a 10,000 lb lift, and seamless access to both the Gulf and Atlantic. Enjoy breathtaking sunset views from two spacious screened porches perfect for relaxing or entertaining.The home features impact windows with tint, granite countertops and a versatile layout including a private 800 sq ft 1 bedroom 1 bath guest suite on the first floor--ideal for guests, extended family, or potential income. An elevator provides convenient access to all levels.Step outside to your private oasis complete with a heated and chilled saltwater pool with lighting and a hot tub, creating a true resort-style experience year-round. Covered parking includes space for an RV with 30-amp service along with a separate downstairs workroom for added storage or hobbies.Located in a quiet family-friendly neighborhood this property offers the perfect balance of luxury, privacy, and accessibility. Furniture is negotiable, making this an exceptional opportunity for full-time living, a vacation retreat or investment property.A rare offering combining open water views, premium boating amenities and refined coastal living.
View MoreCourtesy of
Agency Name: Berkshire Hathaway HomeServices Keys Real Estate - Lower Key
Agency Phone: (305) 735-4962
Agent Name: Michele Adams
Presented by
Agent Name: Boca East
Agent Phone: 561.501.1001
Agency Title: The Keyes Company
Request Info
Send an email with a link to
1112 W Shore Drive, Big Pine Key, FL 33043.
Email 1112 W Shore Drive, Big Pine Key, FL 33043
Thank you for your inquiry! As a thank you, we have a Special Mortgage Offer for You.
We would like to provide you a free, no-obligation, home loan pre-approval review.